Услуга деталировки мебели


Услуга конструктора мебели

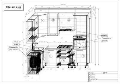
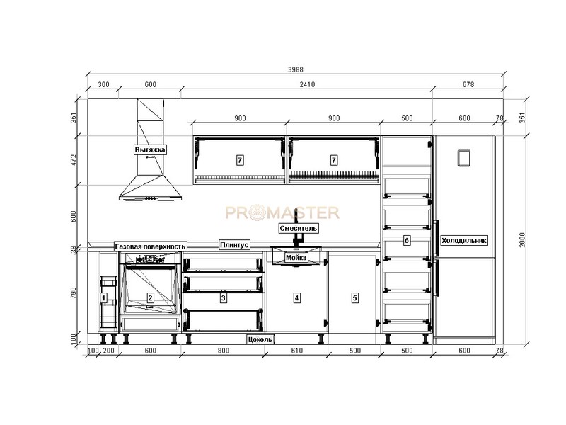
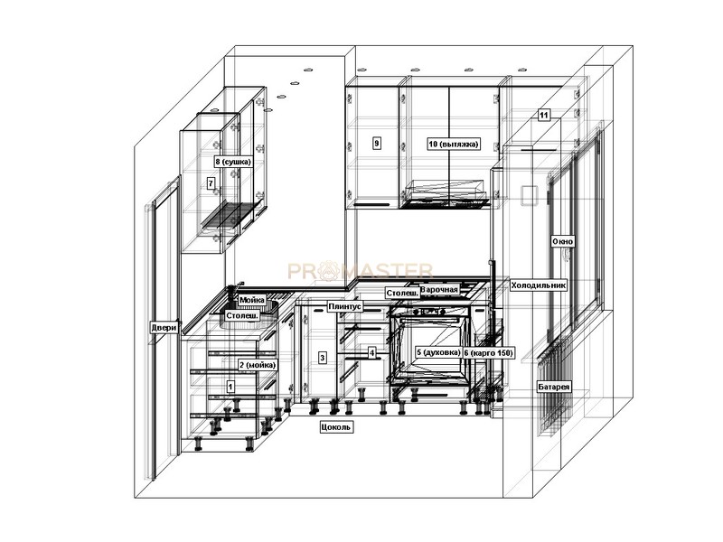
Мы предлагаем своим клиентам услугу конструктора мебели. Конструктор выполняет очень важную часть работы, в результате которой заказчик получает профессионально выполненные чертежи со всеми размерами, деталировку и список фурнитуры. Конструктор также рекомендует оптимально подходящие для каждого предмета мебели материалы, детали крепежа и фурнитуру.

К примеру, часто перечень комплектующих выглядит таким образом:

  • ЛДСП (количество, толщина, размер и цвет);
  • МДФ (количество, толщина, размер и цвет);
  • ДВП (количество, толщина и цвет);
  • кромка (количество, толщина, размер, цвет и метраж);
  • фурнитура (направляющие, петли, ручки, саморезы и т. д.)
  • раздвижные двери (размер и цвет);


Деталировка представляет собой таблицу, содержащую пильные размеры всех деталей. Это значит, что в размерах не учтена толщина кромки. Такая таблица содержит также информацию о сторонах деталей, на которые предусмотрено наклеивание кромки, а также о толщине этой кромки. Подобные таблицы составляются по группам материалов и фактически они являются техзаданием для производства.

В процессе работы обращают внимание на тот факт, что структура листового материала имеет определённый рисунок, часто имитацию дерева. В связи с этим, конструктор следит, чтобы направление волокон в изделии было неизменным. Кроме того, что размеры деталей должны точно соответствовать чертёжным размерам, при распиле листовых материалов ещё следят, чтобы на заготовках не было дефектов - сколов или царапин.  В случае, если заказчик решает выполнять сборку мебели самостоятельно, ему всё-равно не обойтись без услуг специалистов. Наш дизайнер помогает создавать нужную стилистику мебели, выполняет 3D визуализацию. Если требуется, вносит изменения и поправки. Конструктор делает расчёты в специальной программе и предоставляет заказчику комплект документов, вполне достаточный для самостоятельной сборки мебели. 

Клиент получает у нас сборочные чертежи и всю необходимую техническую документацию. Также мы разрабатываем грамотную деталировку каждого предмета мебели и раскрой ДСП, МДФ и ДВП, с обозначением кромки.

Все наши документы выполняются согласно действующим нормам и в полном соответствии с характеристиками материалов и комплектующих деталей. Работа конструктора существенно облегчает изготовление и сборку новой мебели, экономит ваше время.

Консультация по телефону: (044) 227-69-21, (093) 529-25-99, (097) 964-15-99

Комментарии

Пока нет комментариев

Написать комментарий




captcha
>>>